Hotel Kálvária Győr

Tréning
Céges utazás
Konferencia
Csapatépítő
Tárgyalás
Szobák száma
31 db
Szobák kapacitása
56
Rendezvénytermek száma
1 db
Összterület
49 m2
Kép
Terem neve
Területe
Belmagassága
Fény forrása
Elrendezés és férőhely (fő)
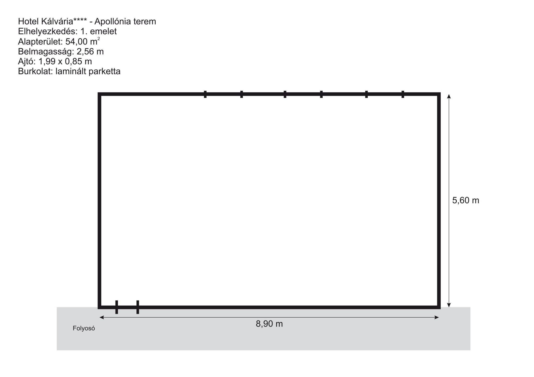
Apollónia terem
Légkondicionált
Parketta
49 m2
2.56 m
természetes
Színház
25
Iskolapados
20
U-alak
20
Állófogadás
25
Terem neve
Apollónia terem
Területe
49 m2
Elrendezés és férőhely (fő)
Színház
25
Iskolapados
20
U-alak
20
Állófogadás
25
Jellemzők
  • Saját parkoló
  • Saját étterem
Helyszín szolgáltatásai
  • Wellness részleg
Felszerelés
  • Légkondicionáló
  • Vetítővászon
  • WIFI
  • Projektor
  • Flip-chart
  • Whiteboard tábla

Győr belvárosának közelében található a Hotel Kálvária Győr.
A szálloda (3* és 4*) is kínál szállás lehetőséget, így tökéletes helyszín konferenciák lebonyolításához.
A szállodában 18 db szoba és egy 54 m2-es konferenciaterem található. Ezeken felül pedig étterem, kondicionáló terem és szauna is elérhető.
A szálloda vendégei részére a parkolás ingyenesen biztosított.

9.3
Nagyon jó
  • Személyzet: 9.6
  • Tisztaság: 9.8
  • Ár/Érték: 9
  • Komfort: 9.3
  • Szolgáltatások: 9.6
  • Megközelíthetőség: 9.2
x

Hotel Regisztráció