







Győr belvárosának szívében helyezkedik el a Hotel Kálvária.
A a hotel kiválóan alkalmas konferenciák megszervezéséhez.
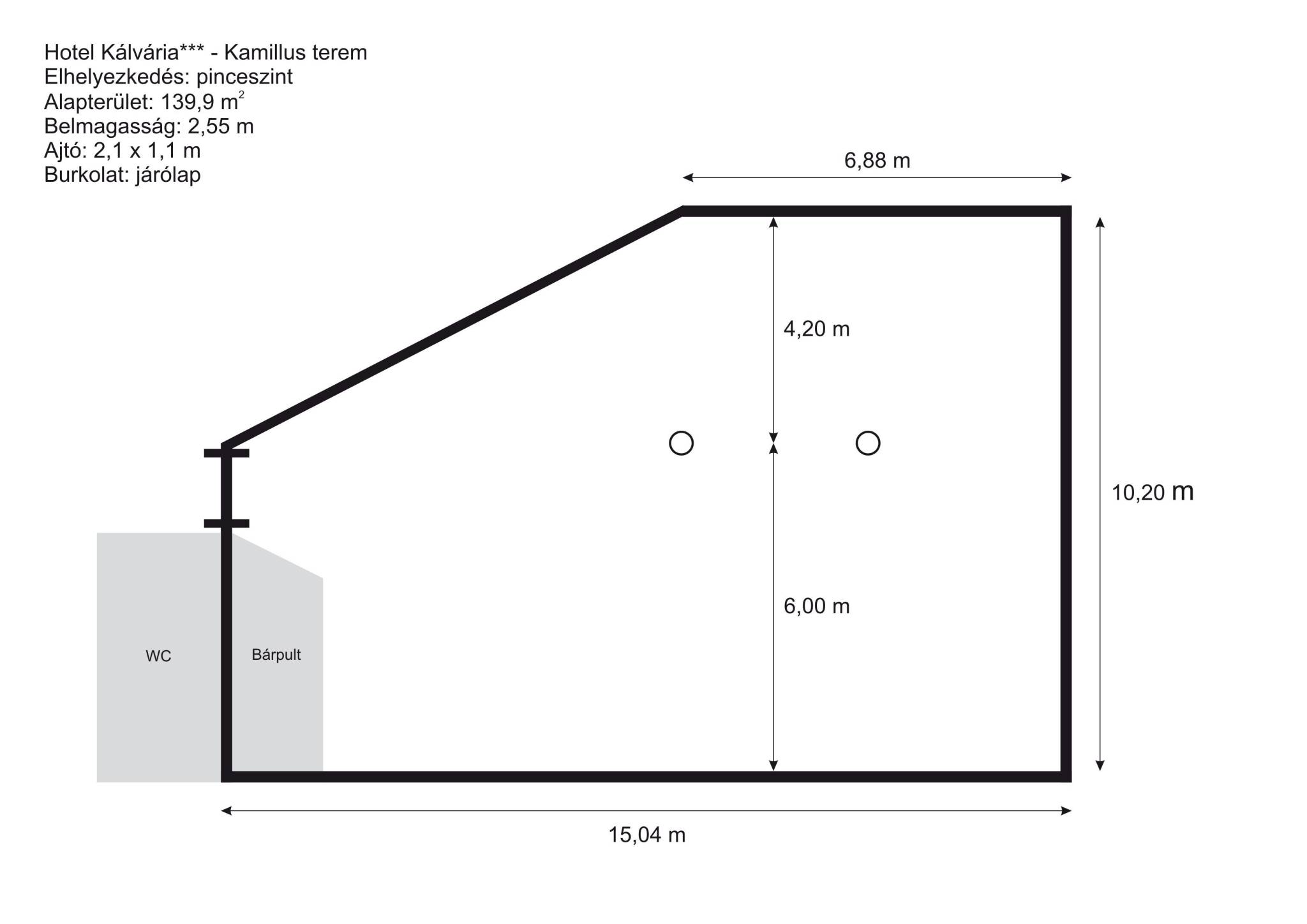
A háromcsillagos szállodában 15 db szoba és egy 139 m2-es konferenciaterem, spa részleg és drink bár kapott helyet.
A vendégek részére a parkolás díjmentesen biztosított.